
本案120㎡复式精装房改造,一家四口居住,女业主的品味极高且心思细腻,需要高颜值的家与高质感的生活。
综合各方面考虑,我们保留了四房的设计,并针对户型情况对收纳、采光、颜值、细节上对整体进行一个调整。

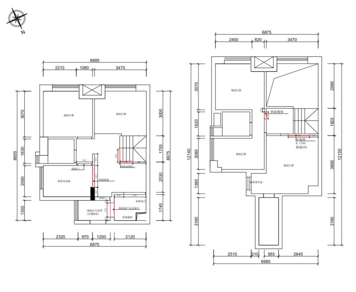
原始结构图

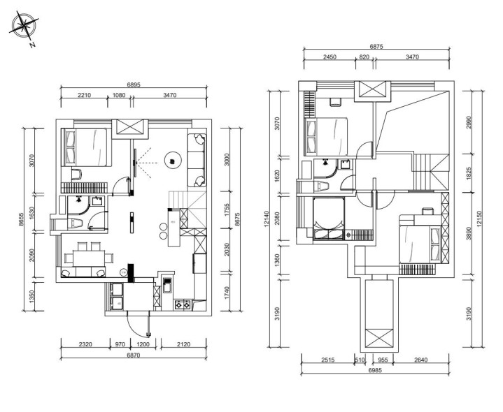
平面布置图
玄关

玄关是家中占面积最小的地方,却承担着出入户收纳与日常家务区的重担。
一组矮柜鞋柜,隐藏家庭的鞋子,增加台面置物区,放摆件、随手物品等,让出入户更便捷。


临窗设置洗衣机与烘干机解决家庭的洗衣晾晒问题,同样打造了台面置物区,增强功能,提升实用度。

客厅

客厅将简约环保的质感完美诠释,浅色木饰面背景墙与深色玻璃感、木格栅相映成辉,明暗对比明确,简洁不做作。


挑高客厅结合整面落地窗显得明亮大气,配上轻奢环形吊灯与干净利落的弱光源线条,整体造型别致,格调满满。


深灰色的绒面沙发,自带慵懒属性,简洁大方的造型融入到小的客厅里也不会拥挤。沙发前还铺设一张大地毯,以及懒人沙发等,平时亲友来聚会也能自在围坐,或者一个人悠闲地靠在这追剧,那是相当的惬意。


餐厅

独立的餐厅,完美解决原餐厨小的问题,温润的原木质感,更有家的温馨味道。
沉稳舒适的餐椅与精致大理石餐桌形成对比,为用餐空间带来奢华的艺术感。法式风味长条凳,立于一侧,既增加餐厅的优雅质感,又节省了椅背原本要占用的空间。



贯彻无主灯设计,一侧定制嵌入式餐边柜,完善收纳美学;另一侧墙面留白搭配精致时钟,在简约的氛围中增添一丝精致优雅。



厨房

厨房改造成开放式,与入户家政间、客餐厅空间视觉互通,整体通透敞亮,延伸了整体空间感。

U型布局,橱柜门隐藏把手,使空间看起来更整洁干净,而且收纳能力也不赖。橱柜内也嵌入了大厨电,将厨房空间最大化利用,也增加了生活乐趣。


吧台

厨房外设置了吧台,既能起到空间分隔的作用,也能当做临时餐吧,喝酒聊天,或做小工作区,办公阅读。


业主有很多藏酒,设计师靠墙定制了酒柜,玻璃柜门搭配内嵌灯带,氛围感MAX。嵌入冰箱与酒柜融为一体,动线流畅。


温和的色调与暗藏的灯线悄然碰撞,呈现舒适的视感,水磨石台面及精致的摆件,简约的外表下是『精致』的生活。



过道

有光影、有爱好、有互动。
一楼卫生间

设计单独淋浴房,实现干湿分离。马桶后方借助窗台收纳一些小物件。原木色浴室柜,水磨石洗漱台,温馨而自然。

一楼卧室

一楼卧室,选择了极浅灰、深木色的经典组合,使空间稳重而沉静,营造轻松的入眠氛围。
除了顶部的吸顶灯提供基础照明外,我们还在床头上方补充灯线照明,方便阅读。榻榻米地台床周围也嵌入了感应灯带,方便起夜。

床侧边定制通顶的极简平板/玻璃柜门,也让卧室空间充满简洁与实用的气息。靠近床头处延伸出床头柜,简约而时尚。


楼梯

转角楼梯,把简约贯彻到底。木质踏板配上金属收边条,营造闲适轻松的居住氛围,也升华空间格调。


墙面挂上暴力熊潮牌LED挂画,时尚元素,配上轻奢格调,让空间更生动有趣。

二楼卧室1

儿童房,以绿色乳胶漆与原木材质结合,营造了柔软的舒适感,背景墙半墙设计,拉伸空间层次感。


床侧边的功能柜与书桌结合,面向飘窗,有良好的采光条件。平时在这看书、办公等,悠哉地度过一个下午。


二楼卧室3

奶油色与原木色的结合,和谐统一,兼具时尚气质。定制大地台,规划出了收纳柜+床+办公桌,实用与颜值并存。

书桌区域的柜体做了到顶镜子贴面,既有放大空间的效果,也可以做为穿衣镜、跳舞镜等使用。

侧边窗户处做了嵌入式L型收纳柜,开放竖柜收纳精致的摆件等,地柜上方延伸了飘窗台,打造了一处小巧的休闲空间。

二楼客房

温润的木地板和素色墙面,肌理感十足。榻榻米床充分发挥小房间的潜力。飘窗延伸出竖柜与悬空一字抽屉柜,紧靠着床,却有舒适的放腿空间,还不影响采光。

靠墙定制了一门到顶衣柜,玻璃柜门的设置,让客房保持简洁的格调时,还能呈现出满满的生活感。

二楼卫生间

卫生间保持一致,不同深度的灰色墙地砖搭配原木色浴室柜,简洁大气。

靠谱的股票杠杆交易平台提示:文章来自网络,不代表本站观点。